
波状挡边大倾角皮带输送机
关键词:检验筛分,配件系列,振动器输送给料,矿用筛分,精细筛分描 述:新乡市泰宇矿工设备有限公司是一家集技术研发、加工制造与服务为一体的创新型企业,公司主要致力于粉磨与破碎、筛分与输送、 节能与环保及其他相关产品的设计、制造与安装调试,同时承接业内信息咨询、 系统方案规划等相关项目。

大倾角皮带输送机产品概述:
大倾角皮带输送机广泛用于煤炭、冶金、建筑、粮食、化工、电力等部门。大倾角带式输送机具有通用带式输送机结构简单、运行可靠,维修方便等优点,具有可大倾角(90度垂直)输送、结构紧凑、占地少等特点,输送倾角为0°~90°范围内,*大垂直输送物料粒度为400mm。大倾角带式输送机是大倾角(或垂直)输送的理想设备。通过多年的不懈努力,大倾角皮带机提升高度(*高已达203m)、大输送能力(*大已达6000t/h),在井下采矿工程、露天采矿、大型自卸船等方而都有所采用,并在国内**用于钢厂的高炉上料产生了良好的经济效益。
DJ型大倾角带式输送机(以下简称“大倾角”)具有通用带式输送机结构简单、运行可靠,维修方便等优点,具有可大倾角(90度垂直)输送、结构紧凑、占地少等特点,因而是大倾角(或垂直)输送的理想设备。大倾角皮带输送机广泛用于煤炭、冶金、建筑、粮食、化工、电力等部门。通过多年的不懈努力,大倾角皮带机提升高度(*高已达203m)、大输送能力(*大已达6000t/h),在井下采矿工程、露天采矿、大型自卸船等方而都有所采用,并在国内**用于钢厂的高炉上料产生了良好的经济效益。
大倾角皮带输送机的应用范围:
(1)、大倾角皮带输送机为一般用途的散状物料连续输送设备,但采用的是具有波状挡边和横隔板的输送带。因此,特别适用于大倾角及垂直90°输送。
(2)、该机可用于煤碳、化工、冶金、电力、轻工、粮食、港口等行业,在工作环境温度为-15℃~+40℃的范围内输送堆积比重为0.5—4.2t/m3的各种散状物料。
(3)、对于输送有特殊要求的物料,如:高温、具有酸、碱、油类物质或有机溶剂等成份的物料,需采用特殊的输送带。
(4)、输送倾角为0°~ 90°范围内,*大垂直输送物料粒度为400mm。
大倾角皮带输送机产品主要特点:
(1)、可大倾角输送散状物料,能大量节省设备占地面积,彻底解决普通、花纹带式输送机所不能达到的输送角度。
(2)、机械化带式输送机输送物料、总体投资费用低,约节约投资费用20%~30%。
(3)、该机型与普通带式输送机、斗式提升机、刮板输送机比较,其综合技术性能都**。
(4)、输送量大,可达6000m3/h,垂直提升高度可达500m。
(5)、在垂直输送物料时,物料粒度*大可达400mm。
(6)、从水平到倾斜(或垂直)能平稳过渡。
(7)、能耗低、结构简单、维护方便。
(8)、胶带强度高,使用寿命长。
大倾角皮带输送机的主要优点:
(1)大倾角皮带输送机的输送倾角大,*大可达90°,是大倾角输送和垂直提升的理想设备。因此可以节约占地面积,节省设备投资和土建费用,取得良好的综合经济效益。例如,某用户欲将煤炭提升到20m高的料仓顶,如采用挡边机以45°倾角输送,则机长仅需28.3m(水平机长20m);而如果采用垂直输送的挡边机,那么,水平机长可以控制在6m以内。
(2)结构简单。如前所述,各主要部件均可与通用带式输送机通用,给使用、维修带来方便。
(3)运行可靠。没有埋刮板输送机经常出现的卡链、飘链、断链现象和斗式提升机经常发生的打滑、掉斗现象。它的可靠度几乎与通常带式输送机相等。
(4)运行平稳、噪声小。
(5)由于不存在装料时的挖掘阻力和运行时物料的内摩擦、外摩擦阻力,因此能耗小。例如,在鲁南化肥厂使用的两台提升高度各为19.28m、输送能力各为25t/h的输送碎煤的垂直挡边机,其每台的装机功率仅4kW,而被它们所取代的四台原有埋刮板输送机的总装机功率为44kw。
(6)垂直挡边机还可以在机头和机尾设置任意长度的水平输送段,便于和其他设备衔接。
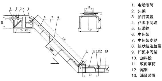
大倾角皮带输送机外形图:

大倾角皮带输送机(挡边带式输送机)技术参数表:
带宽B(mm) | 300 | 400 | 500 | 650 | 800 | |||||||||
挡边高(mm) | 40 | 60 | 60 | 80 | 80 | 120 | 120 | 160 | 120 | 160 |
| 200 | 240 | |
部分输送倾角输送量Q3/h | 30° | 15 | 14 | 20 | 34 | 46 | 71 | 104 | 120 | 128 | 157 |
| 195 | 235 |
45° | 11 | 10 | 14 | 26 | 35 | 57 | 83 | 97 | 102 | 127 |
| 157 | 195 | |
60° | 8 | 7 | 10 | 18 | 25 | 40 | 58 | 69 | 72 | 90 |
| 112 | 142 | |
90° | 4 | 4 | 5 | 10 | 13 | 21 | 31 | 37 | 38 | 48 |
| 60 | 76 | |
外型尺寸 | 头轮中心高H2/h(MM) | 350-100 | 1100-2000 | 1300-2000 | 1300-2000 | |||||||||
尾轮中心高H2/h(MM) | 335 | 330-490 | 600 | 600 | 600-800 | |||||||||
中间段带面高H2/h(MM) | 450 | 500-700 | 760-800 | 800-850 | 800-1115 | |||||||||
中间段地脚宽B2/h(MM) | 480 | 580 | 870 | 1020 | 1220 | |||||||||
带宽B(mm) | 1000 | 1200 | 1400 | |||||||||||
挡边高(mm) | 120 | 160 | 200 | 240 | 160 | 200 | 240 | 300 | 160 | 200 | 240 | 300 | 400 | |
部分输送倾角输送量Q3/h | 30° | 172 | 216 | 267 | 327 | 275 | 331 | 419 | 466 | 319 | 395 | 500 | 564 | 794 |
45° | 137 | 175 | 216 | 271 | 222 | 267 | 347 | 384 | 258 | 318 | 414 | 465 | 680 | |
60° | 96 | 124 | 153 | 197 | 158 | 190 | 253 | 178 | 184 | 226 | 302 | 337 | 524 | |
90° | 51 | 66 | 83 | 106 | 85 | 102 | 136 | 149 | 98 | 121 | 162 | 180 | 281 | |
外型尺寸 | 头轮中心高H2/h(MM) | 1400-2000 | 1600-2000 | |||||||||||
尾轮中心高H2/h(MM) | 600-800 | 800-1000 | 800-1200 | |||||||||||
中间段带面高H2/h(MM) | 800-1200 | 1050-1500 | 1050-1700 | |||||||||||
中间段地脚宽B2/h(MM) | 1440 | 1690 | 1890 | |||||||||||
★泰宇振动可根据用户需要而设计制造特殊型号规格的皮带式输送机。大倾角皮带输送机(挡边带式输送机)订货须知:
根据输送机出力要求及工艺布置要求,用户应向生产厂商提供输送机的布置形式及尺寸、带宽、生产率、物料堆积密度等参数;如用户有特殊要求可与生产厂商另行洽谈。
★泰宇振动对所有技术资料、尺寸保留修改的权利,如实物与文中图案不符,应以实物为准,解释权归泰宇公司。
概述:
该系列产品主要用于散装物料的大倾角连续输送,采用具有波状挡边和横隔板的输送带。输送倾角为0-90°(70°以下*好),其特点为:用一台设备在狭小的空间可完成水平倾斜输送,具有通用带式输送机水平或小倾角输送可靠性高、节能和斗式提升机提升物料可靠经济的优点。本系列产品广泛用于煤炭、粮食、建材、化工、水电和冶金等部门,在环境温度为-19℃—+40℃范围内输送堆积密度为0.5—2.5t/m3的各种散装物料,对于输送有特殊要求的物料,如耐高温或具有酸、碱性、油类物质、有机溶剂等成分的物料,须在订货时提出,采用相应材料的特殊挡边输送带。
主要技术参数:
带宽B | 400 | 500 | 600 | 800 | 1000 | 1200 | 1400 | |||||||||
挡边高H | 60 | 80 | 80 | 120 | 120 | 160 | 160 | 200 | 160 | 240 | 200 | 300 | 240 | 400 | ||
*小横隔板间距 | 100 | 120 | 120 | 160 | 160 | 200 | 200 | 250 | 200 | 280 | 250 | 350 | 280 | 400 | ||
输送量(原煤、带速 1m/s)m3/h | 35 | 28 | 36 | 50 | 71 | 104 | 120 | 157 | 195 | 216 | 327 | 331 | 466 | 500 | 794 | |
45 | 19 | 25 | 33 | 57 | 83 | 97 | 127 | 157 | 175 | 271 | 267 | 384 | 414 | 680 | ||
60 | 15 | 19 | 23 | 40 | 58 | 59 | 90 | 112 | 124 | 197 | 190 | 278 | 302 | 524 | ||
90 | 9 | 11 | 15 | 21 | 31 | 37 | 48 | 60 | 66 | 106 | 102 | 149 | 162 | 281 | ||
外形尺寸 | 头轮带面高H1 | 1200 | 1350 | 1615 | 1815 | 2000,2200 | 2300,2525 | 2525,2700 | ||||||||
尾轮带面高H2 | 690 | 800 | 950 | 1115 | 1250,1400 | 1600,1700 | 1600,1700 | |||||||||
中间段带面高H3 | 700 | 800 | 850 | 1115 | 850,1200 | 1400,1500 | 1600,1700 | |||||||||
中间段地脚宽B1 | 580 | 850 | 1020 | 1220 | 1440 | 1690 | 1890 | |||||||||
注:本表中输送量按*小间隔板间距计算,带速增减,输送量成倍增减,其他物料可参见表确定。
| 粒度mm |
| ≤100mm | ≤160mm | ≤250mm |
速度m/s | 挡边高≤120mm | 倾角≤30度 | 2 | 1.6 |
|
倾角≤60度 | 1.6 | 1.25 |
| ||
挡边高≤240mm | 倾角≤30度 | 2.5 | 2 | 1.6 | |
倾角≤60度 | 1.6 | 1.6 | 1.0 |
外形图:

选型:
根据输送物料特性、倾角及输送量的大小,参照表1 及表2,确定输送机的带宽,挡边高及带速大小。其中:
(1)挡边输送带分常温(-20~50℃)、耐热(120℃以下),耐高温(180℃以下)及耐酸耐碱耐油等几种;
(2)输送大块物料时,挡边应选用偏高的;也可不增大带宽和挡边,用提高带速(1.25m/s、1.6m/s、2m/s)的办法提高输送量;
(3)输送高度*大70m,*大粒度应小于挡边高30-40mm.
(4)上托辊间距一般为1.2m,下托辊间距一般为1.2m,倾角大于60°时为2.4m,防跑偏挡辊间距为3-6m.L3标准为2200,*小1500.
使用说明:
1、本表仅适于初步简易选型,*终选型结果应按计算结果确定。
2、本表中数据按胶带线速度V=1m/s,横隔板间距ts=0.25m,物为容量γ=1t/m3,提升高度H=10m为假定条件计算,如条件不同应适当换算。
3、选型举例:
已知:输送物料为煤,容量γ=0.8t/m3,物料粒度A《40mm,输送倾角β=45°,输送量Q=85t/h,输送高度15m,求所需带宽和带速以及电机功率。先求得胶带机输送量应为85t/h÷0.5t/m3,=106.25m3/h,然后在表中45°倾角列中查到B=800,H=160的输送量96.6m3/h*为接近,再将线速度改为1.25m/s,则胶带输送量成为96.6m3/h×1.25=120.75m3/h,即可满足使用要求。相应所需功率为4.59Kw×15m÷10m×1.25=8.6kw.
4、横隔板形式根据输送机倾角大小选定。
18°<β≤40°T型,40°<β≤60°C型,60°<β≤90°TC型
13803802837
新乡市泰宇矿工设备有限公司
岳总:13803802837
电 话:0373-3716021 3716020
传 真:0373-7039684
地 址:凤泉区产业集聚区东段
邮 箱:xxtykg@xxblt.com
网 址:http://www.hnxxzds.com